新築戸建 安佐北区あさひが丘7丁目
新築戸建 |
![]() |
2779 |
クイック!ローンシュミレーション
物件画像
※各画像をクリックすると拡大して表示します
※各画像をクリックすると拡大して表示します
【担当者からのコメント】
【価格変更】(R8年3月19日)新価格:2,030万円・安心のオール電化住宅・住宅性能評価取得・耐震等級3・省エネ性能ラベルあり・各居室に収納スペース完備・小、中学校徒歩圏内でお子様の通学も安心です。
周辺地図
Loading...
物件詳細情報
| 種別 | 新築戸建 | 価格 | 2030万円 ![]() |
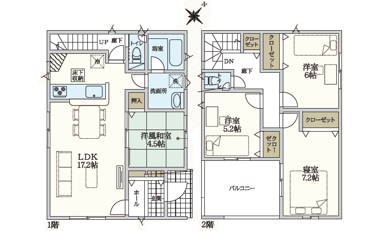
間取り | 4LDK |
|---|---|---|---|---|---|
| 所在地 | 広島県広島市安佐北区あさひが丘7丁目 | ||||
| 交通 | バス(あさひが丘下 停歩4分) | ||||
| 築年月 | 2026年1月 | 新築/中古 | 新築 |
|---|---|---|---|
| 建物面積 | 105.70m² | 計測方式 | |
| バルコニー | m² | 向き | |
| 建物階数 | 地上2階 | 部屋階数 | 階 |
| 建物構造 | 木造 | ||
| 間取内容 | 1階LDK17.2畳1室 1階和室4.5畳1室 2階洋室7.2畳1室 2階洋室6畳1室 2階洋室5.2畳1室 |
||
| 駐車場 | 並列駐車2台可 | ||
| 引渡/入居時期 | 即時 | 現況 | 空家 |
| 地目 | 宅地 | 用途地域 | 第一種低層住居専 |
| 都市計画 | 市街化区域 | 地勢 | ひな段 |
| 区画面積 | 217.19m² | 土地面積計測方式 | 公簿 |
| 建ぺい率 | 50% | 容積率 | 100% |
| 土地権利 | 所有権 | 接道状況 | 一方 |
| 接道方向1 | 南東 | 接道間口1 | |
| 接道種別1 | 公道 | 接道幅員1 | 約 6.1m |
| 周辺環境 | 日浦 日浦 | 取引態様 | 仲介 |
| 物件番号 | 2779 | ||
|---|---|---|---|
| 自社物 | 先物 | 状態 | 売出中 |
| 設備・条件 | IHコンロ システムキッチン カウンターキッチン 給湯 追い焚き 洗髪洗面化粧台 浴室乾燥機 ユニットバス 温水洗浄便座 床下収納 TVドアホン 公営水道 排水下水 駐車場有 バルコニー フローリング バリアフリー オール電化 住宅性能評価書 【設備その他】 【NO2】土砂災害警戒区域 |
||
新築戸建 安佐北区あさひが丘7丁目の関連オススメ物件
※物件掲載内容と現況に相違がある場合は現況を優先と致します。
物件お問合せフォーム
この物件に関するお問合せは下記のフォームにご記入のうえ、「お問い合わせ内容を送信する」ボタンをクリックしてください。
1営業日以内に担当者より返信させていただきます。
お問合せ先
アルホーム株式会社
私たちがお手伝いします。お気軽にご連絡ください。
| 住所 | 〒731-1141 広島市安佐北区安佐町鈴張5038-4 |
|---|---|
| 電話番号 |
TEL:082-554-9595 FAX:082-554-9568 |
営業時間 | 9:00~18:00 |
| 定休日 | 毎週水曜日・盆・年末年始 |
| 代表者 | 大屋 由紀夫 |
| 免許番号 | 広島県知事(9)第6704号 (平成元年4月20日設立) |
| 加盟団体 | 公益社団法人 全日本不動産協会会員 |
- ☎082-554-9595
- 営業時間:9:00~18:00 定休日:毎週水曜日・盆・年末年始
- ★フォームからは24時間受付けております

新築戸建




























