中古戸建 安佐北区亀山西2丁目
				
				
				
				
        	 中古戸建 | 
        	![]()  | 
        	2753  | 
			
クイック!ローンシュミレーション
物件画像
※各画像をクリックすると拡大して表示します
※各画像をクリックすると拡大して表示します
【担当者からのコメント】
		令和6年7月室内リフォーム済:キッチン、浴室、トイレ、壁・ダイワハウスの家・納戸・南庭・陽当り通風良好・掘込駐車1台※土砂災害警戒区域内
周辺地図
Loading...
								物件詳細情報
| 種別 | 中古戸建 | 価格 | 1380万円 | 間取り | 4SLDK | 
|---|---|---|---|---|---|
| 所在地 | 広島県広島市安佐北区亀山西2丁目 | ||||
| 交通 | バス(勝木台中 停歩4分) | ||||
| 築年月 | 1995年11月 | 新築/中古 | 中古 | 
|---|---|---|---|
| 建物面積 | 105.25m² | 計測方式 | |
| バルコニー | m² | 向き | |
| 建物階数 | 地上2階 | 部屋階数 | 階 | 
| 建物構造 | 軽量鉄骨 | ||
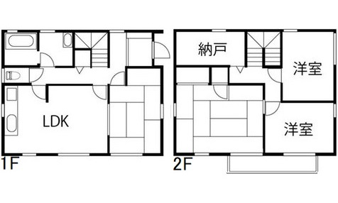
| 間取内容 | 1階LDK1室  1階和室6畳1室  2階和室8畳1室  2階洋室2室 2階S1室      | 
			||
| 駐車場 | 掘込駐車1台 | ||
| 引渡/入居時期 | 相談 | 現況 | 空家 | 
| 地目 | 宅地 | 用途地域 | 第一種低層住居専 | 
| 都市計画 | 市街化区域 | 地勢 | ひな段 | 
| 区画面積 | 206.55m² | 土地面積計測方式 | 公簿 | 
| 建ぺい率 | 50% | 容積率 | 100% | 
| 土地権利 | 所有権 | 接道状況 | 一方 | 
| 接道方向1 | 北 | 接道間口1 | |
| 接道種別1 | 公道 | 接道幅員1 | 約 9m | 
| 周辺環境 | 亀山 亀山 | 取引態様 | 仲介 | 
| 物件番号 | 2753 | ||
|---|---|---|---|
| 自社物 | 先物 | 状態 | 売出中 | 
| 設備・条件 | 給湯 洗髪洗面化粧台 ユニットバス 温水洗浄便座 床下収納 TVドアホン その他ガス 公営水道 排水下水 駐車場有 バルコニー フローリング  【設備その他】  | 
									||
中古戸建 安佐北区亀山西2丁目の関連オススメ物件
※物件掲載内容と現況に相違がある場合は現況を優先と致します。
	
	
		
物件お問合せフォーム
この物件に関するお問合せは下記のフォームにご記入のうえ、「お問い合わせ内容を送信する」ボタンをクリックしてください。
1営業日以内に担当者より返信させていただきます。
お問合せ先
アルホーム株式会社
私たちがお手伝いします。お気軽にご連絡ください。
| 住所 | 〒731-1141 広島市安佐北区安佐町鈴張5038-4  | 
|---|---|
| 電話番号 | 
TEL:082-554-9595 FAX:082-554-9568  | 
営業時間 | 9:00~18:00 | 
| 定休日 | 毎週水曜日・盆・年末年始 | 
| 代表者 | 大屋 由紀夫 | 
| 免許番号 | 広島県知事(9)第6704号 (平成元年4月20日設立) | 
| 加盟団体 | 公益社団法人 全日本不動産協会会員 | 
- ☎082-554-9595
 - 営業時間:9:00~18:00 定休日:毎週水曜日・盆・年末年始
 - ★フォームからは24時間受付けております
 

中古戸建
















